
Wer erinnert sich nicht an die triste Aussicht auf den maroden Kaiserbahnhof und die verwilderten von Efeu überwucherten Parkflächen links und rechts der Bahnhofstraße in Richtung Goetheallee hin zur Rennbahn? Marianne Hitzges schaute sich um.

Wer erinnert sich nicht an die triste Aussicht auf den maroden Kaiserbahnhof und die verwilderten von Efeu überwucherten Parkflächen links und rechts der Bahnhofstraße in Richtung Goetheallee hin zur Rennbahn? Marianne Hitzges schaute sich um.
Im letzten halben Jahr ist einiges geschehen. Mit einem Fördermittelbescheid über gut eine Million Euro EU-Mittel, überreicht von Jörg Vogelsänger, Minister für Umwelt und ländliche Entwicklung, an Karsten Knobbe, Bürgermeister der Gemeinde Hoppegarten, wird der Kaiserbahnhof sein historisches Äußeres zurück erhalten und von innen mit einer neuen Galerie und einem Café Besucherinnen und Besucher zum Hereinkommen einladen.
Der Bahnhofsvorplatz ist schon heute mit großem Rondell und mittig eingepflanztem Baum ein schön gestalteter Platz geworden.
Hektisch und laut geht es direkt neben dem Gebäude des Kaiserbahnhofs beim Brückenaustauschbau der Bahn zu. Alles ist hier in Veränderung, besser gesagt in Verschönerung, begriffen.(siehe Foto oben)
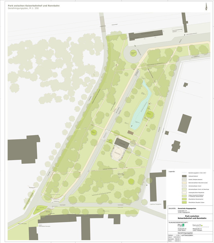
Die einst verwilderten und auch verschmutzten Parkflächen sind beräumt, gelichtet, mit einem neuen Wegenetz aus gelbem Betonstein und neuer Rasensaat neu geordnet und übersichtlich gestaltet worden. Auch hier gab es EU-Fördermittel, eine große Hilfe für die Gestaltung im regionalen Raum.
Sehr erfreulich ist der Beschluss der Gemeindevertretung Hoppegarten in diesen Park, gegenüber der einstigen historischen Auktionshalle, einen Kinderspielplatz zu bauen, um die Aufenthaltsqualität noch zu steigern. Geld wurde in den Haushalt eingestellt.
Fertig begehbar mit barrierefreien Zugängen soll der Park im Juli 2017 sein, damit auch IGA-Touristen ihn noch genießen können. Möglicherweise auch den fertigen Spielplatz noch. Baubeginn ist dort Ende Juli/August 2017.
Bürgerbüro NEUENHAGEN
Sprechzeiten
Dienstag 14:00 - 18:00 Uhr
Mittwoch 14:00 - 18:00 Uhr
Freitag 9:00 - 12:00 Uhr
Ernst-Thälmann-Straße 32A
15366 Neuenhagen bei Berlin
Telefon 03342/ 212 446
E-Mail wk(at)joergvogelsaenger.de
Bitte verabreden Sie rechtzeitig
einen Termin mit Ihrem
Landtagsabgeordneten Jörg Vogelsänger

24.04.2026, 19:00 Uhr - 21:00 Uhr Zwangsvereinigung KPD und SED, 1946
02.05.2026, 15:00 Uhr - 17:00 Uhr Fußball Herren, Landesliga Süd Brandenburg
Bitte beachten Sie den aktuellen Anpfiff eines Spiels
FV Erkner 1920 – 1.FC …
03.05.2026, 10:00 Uhr - 17:00 Uhr Trödelmarkt rund um die „Alte Schulscheune“
Am Sonntag, dem 03. Mai 2026, ist es wieder soweit: Die Show der Oldtimershow mit gemeinsamer Ausfahrt rund um d …
SPD Oder-Spree
SPD Märkisch Oderland
SPD Erkner
SPD Grünheide
SPD Hoppegarten & Neuenhagen
SPD Schöneiche
SPD Woltersdorf
30.03.2026 18:07 Nina Scheer zur Reaktivierung von Kohlekraftwerken
Eine verlängerte Nutzung von Kohlekraftwerken nach 2038 wäre weder notwendig noch sinnvoll Die Erneuerbaren sind die sauberste, sicherste und kostengünstigste Form der Erzeugung. Es bedarf allerdings nun auch des entschlossenen Willens der Koalition und der federführenden Bundeswirtschaftsministerin, die gesetzlichen Hebel weiter auf eine systemische Umstellung zur Nutzung Erneuerbarer Energien zu stellen. „Eine verlängerte Nutzung von… Nina Scheer zur Reaktivierung von Kohlekraftwerken weiterlesen
25.03.2026 17:51 Jakob Blankenburg zum Klimaschutzprogramm
67 Maßnahmen, sieben Ministerien, ein Klimaschutzprogramm Die aktuelle Weltlage mit Konflikten, die sich massiv auf unsere Energieversorgung auswirken, zeigt eindeutig: Wir müssen schnell unabhängig von fossilen Energieträgern werden. Das heute von Bundesumweltminister Carsten Schneider vorgelegte Klimaschutzprogramm zeigt einen fairen Weg zur Erreichung der Klimaziele 2030 sowie für mehr Versorgungssicherheit auf. „Dieses Klimaschutzprogramm ist für die… Jakob Blankenburg zum Klimaschutzprogramm weiterlesen
25.03.2026 17:50 Eine notwendige strategische Perspektive für die Zukunft unseres Wirtschaftsstandorts
Ich begrüße die Impulse von Bundesfinanzminister Lars Klingbeil ausdrücklich. Deutschland steht an einem Wendepunkt. Wir brauchen ein neues Wirtschaftsmodell: eines, das konsequent auf Innovation setzt, technologische Führerschaft ermöglicht und zugleich dafür sorgt, dass Wohlstand in der Breite der Gesellschaft ankommt. „Innovation und Gerechtigkeit sind die Grundlage für nachhaltiges Wachstum und breiten Wohlstand in Deutschland. Deshalb… Eine notwendige strategische Perspektive für die Zukunft unseres Wirtschaftsstandorts weiterlesen
11.02.2026 21:41 Dagmar Schmidt zum Behindertengleichstellungsgesetz
Barrierefreiheit nützt uns allen Die Bundesregierung treibt die Barrierefreiheit voran: Das Kabinett hat am Mittwoch eine Reform des Behindertengleichstellungsgesetzes auf den Weg gebracht. SPD-Fraktionsvizin Dagmar Schmidt spricht von einem wichtigen Schritt. „Der Gesetzentwurf zur Reform des Behindertengleichstellungsgesetzes bedeutet einen wichtigen Schritt hin zu einer inklusiveren Gesellschaft. Er stärkt die Rechte von Menschen mit Behinderungen und… Dagmar Schmidt zum Behindertengleichstellungsgesetz weiterlesen
11.02.2026 21:39 Stefan Zierke zur Entwicklung im Deutschlandtourismus
Rekord im Tourismus – Strategie, gute Arbeit und verlässliche Politik zahlen sich aus Stefan Zierke, tourismuspolitischer Sprecher: Der Deutschlandtourismus erreicht mit 497,5 Millionen Gästeübernachtungen einen neuen Rekord. Klare Strategie, engagierte Beschäftigte und verlässliche Politik sorgen für Wachstum, stärken die Betriebe und sichern gute Arbeit – für einen wirtschaftlich starken, sozial gerechten und nachhaltigen Tourismus in allen… Stefan Zierke zur Entwicklung im Deutschlandtourismus weiterlesen
Ein Service von info.websozis.de